- トップ
- 中古マンションをエリアから探す
- 船橋市
- 前原西
- ライオンズガーデン東船橋
中古マンション

ライオンズガーデン東船橋
情報更新日:2026/04/21 次回更新予定日:2026/05/05
所在地千葉県船橋市前原西4丁目38-6[周辺地図]
交 通総武線「東船橋」駅徒歩11分





物件詳細情報
物件No.31023882692
| 所在地 | 千葉県船橋市前原西4丁目38-6 | ||
|---|---|---|---|
| 交通 | 総武線「東船橋」駅徒歩11分 | ||
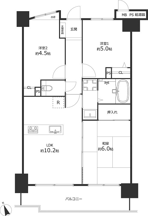
| 間取 | 3LDK | ||
| 専有面積 | 55.6m² (壁芯) | ||
| バルコニー面積 | 8.75m² 南西向き | ||
| 構造・規模 | 鉄骨鉄筋コンクリート造 11階建て 6階部分 |
築年・入居 | 1996年1月築 |
| 現況 | 空室 | 引渡時期 | 相談 |
| 権利種類 | 所有権 | 管理費 | 12,100円/月 |
| 修繕積立金 | 12,290円/月 | 管理形態 | 日勤 全部委託 |
| 管理会社 | 株式会社大京アステージ | 駐車場 | 敷地内にあり |
| 取引態様 | 媒介 | ||
- ※価格は物件の代金総額を表示しており、消費税が課税される場合は税込み価格です。(1,000円未満は切り上げ。)
税率は引き渡し時期により異なりますので、各物件の詳細につきましてはお問い合わせください。 - ※敷地権利が借地権のものは価格に権利金を含みます。
- ※制作中に内容が変更される場合もありますので、あらかじめご了承ください。
- ※購入の前には物件内容や契約条件についてご自身で十分な確認をしていただくようにお願いいたします。
- ※完成予想図はいずれも外構、植栽、外観等実際のものとは多少異なることがあります。
- ※CG合成の画像の場合、実際とは多少異なる場合があります。
周辺地図
周辺施設一覧
- ショッピングセンター
- スーパー
- コンビニ
- ドラッグストア
- ホームセンター
- 飲食店
- その他店舗
- 商店街
- 大学
- 専門学校
- 高校・高専
- 中学校
- 小学校
- 保育園
- 幼稚園
- 公民館・児童館
- 病院
- 郵便局
- 役所
- 図書館
- 金融機関
- 警察・消防
- 趣味・娯楽施設
- 公園・運動施設
- 周辺の街並み
- 駅
- その他
お問い合せ先
- 株式会社アーバンホーム
- お電話でのお問い合わせは
047-377-2911「ホームページを見た」とお問い合わせください - 千葉県市川市南八幡5-17-12 アーバンレジデンス本八幡1階
- 営業時間:10:00~19:00
- 定休日:毎週水曜日 第2・第4火曜日
- 免許番号:千葉県知事免許(6)第13298号
- トップ
- 中古マンションをエリアから探す
- 船橋市
- 前原西
- ライオンズガーデン東船橋




















